shanghai security defense & alarm association 愛建網">
在一個機房項目中,比起造價昂貴、高科技的硬件和軟件,橋架顯的很不起眼,但這并不降低橋架在機房中的作用,橋架是整個布線工程中不可缺少的部分,設計選型過程應根據各個系統線纜的類型、數量,合理選定適用的橋架至關重要,本期我們來做個橋架專題,一起來了解下橋架的施工安裝與計算。
一、橋架的種類與選擇
一、電纜橋架型式及品種的選擇
1、需屏蔽電氣干擾的電纜網路或有防護外部(如:有腐蝕液休,易燃粉塵等環境)影響的要求時,應選用(FB)類槽式復合型防腐屏蔽電纜橋架(帶蓋)。
2、強腐蝕性環境應采用(F)類復合環氧樹脂防腐阻燃型電纜橋架。托臂、支架也要選用同樣材料,提高橋架及附件的使用壽命,電纜橋架。在容易積灰和其它需遮蓋的環境或戶外場所宜加蓋板。
3、除上述情況外,可根據現場環境及技術要求選用托盤式、槽式、梯級式、玻璃防腐阻燃電纜橋架或鋼質普通型橋架。在容易積灰和其它需遮蓋的環境或戶外場所宜加蓋板。
4、在公共通道或戶外跨越道路段,底層梯級的底部宜加墊板或在該段使用托盤 。大跨距跨越公共通道時,可根據用戶要求提高橋架的載荷能力或選用行架。
5、大跨距(>3m)要選用復合型橋架(FB)。
6、戶外要選用復合環氧樹脂橋架(F)。

二、電纜橋架安裝施工工藝
一、電纜橋架安裝工藝流程:
定位放線→預埋鐵件或膨脹螺栓→支.吊.托架安裝→橋架安裝→保護接地安裝

二、確定始端與終端位置
根據施工圖確定始端到終端位置,沿圖紙標定走向,找好水平、垂直、彎通,用粉線袋或畫線沿橋架走向在墻壁、頂棚、地面、梁、板、柱等處彈線或畫線,并均勻檔距畫出支、吊、托架位置。
三、預埋鐵件或膨脹螺栓
1、預埋鐵件的自制加工不應小于120mm×80mm×6mm,其錨固圓鋼的直徑不小于10mm。
2、緊密配合土建結構的施工,將預埋鐵件平面緊貼模板,將錨固圓鋼用綁扎或焊接的方法固定在結構內的鋼筋上;待混凝土模板拆除后,預埋鐵件平面外露,將支架、吊架或托架焊接在上面進行固定。
3、根據支架承受的荷重,選擇相應的膨脹螺栓及鉆頭;埋好螺栓后,可用螺母配上相應的墊圈將支架或吊架直接固定在金屬膨脹螺栓上。
四、支、吊架安裝
1、支架與吊架所用鋼材應平直,無顯著扭曲。下料后長短偏差應在3mm范圍內,切口處應無卷邊、毛刺;
2、鋼支架與吊架應焊接牢固,無顯著變形,焊接前厚度超過4mm的支架、鐵件應打坡口,焊縫均勻平整,焊縫長度應符合要求,不得出現裂紋、咬邊、氣孔、凹陷、漏焊等缺陷;
3、支架與吊架應安裝牢固,保證橫平豎直,在有坡度的建筑物上安裝支架與吊架應與建筑物的坡度、角度一致;
4、支架與吊架的規格一般不應小于扁鋼30mm×3mm;角鋼25mm×25mm×3mm;
5、嚴禁用電氣焊切割鋼結構或輕鋼龍骨任何部位;
6、萬能吊具應采用定型產品,并應有各自獨立的吊裝卡具或支撐系統。
7、固定支點間距一般不應大于1.5~2m。在進出接線盒、箱、柜、轉角、轉彎和變形縫兩端及丁字接頭的三端500mm以內應設固定支持點。
8、嚴禁用木磚固定支架與吊架。
五、橋架安裝
1、電纜橋架水平敷設時,支撐跨距一般為1.5~3m,電纜橋架垂直敷設時固定點間距不宜大于2m。橋架彎通彎曲半徑不大于300mm時,應在距彎曲段與直線段結合處300~600mm的直線段側設置一個支、吊架。當彎曲半徑大于300mm時,還應在彎通中部增設一個支、吊架。支、吊架和橋架安裝必須考慮電纜敷設彎曲半徑滿足規范最小彎曲半徑。見下表。
電纜最小允許彎曲半徑
2、門型角鋼支架的安裝:梯型橋架沿墻垂直敷設,可使用門型角鋼支架,支架的固定應盡可能配合土建施工預埋。如圖12.3.1.5(2-1),也可在土建施工中預埋開角螺栓,用開角螺栓固定支架如下圖12.3.1.5(2-2),也可以采用膨脹螺栓固定。


圖12.3.1.5.(2-1) 角鋼支架預埋安裝

圖12.3.1.5.(2-2) 鋼支架預埋地腳螺栓安裝
3、梯型角鋼支架的安裝:橋架沿墻、柱水平安裝時,托壁需安裝在異型鋼立柱上,而立柱要安裝在梯型角鋼支架上,使柱和墻上的橋架固定支架(或托臂)在同一條直線上。制作見圖和表12.3.1.5(3)底架與門型架焊接時,焊角高度5mm。
表 12.3.1.5(3)
梯型角鋼支架制作尺寸表(mm)

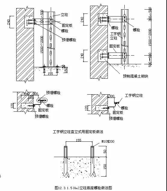
4、電纜橋架立柱側壁式安裝:立柱是直接支承托臂的部件,分工字鋼槽鋼、角鋼、異型鋼立柱;立柱可以在墻上、柱上安裝、也可懸吊在梁板上安裝。做法在混凝土可預埋鐵件;砌體可砌筑預制砌塊;也可以采用膨脹螺栓但必須在混凝土強度C20或磚強度在MU10以上的磚砌體上,作法可參照12.3.1.5(4a、b、c、d、e、f)。



圖12.3.1.5(4c)異型鋼立柱在墻上側壁安裝作法之一



5、電纜橋架應敷設在易燃易爆氣體管和熱力管道的下方,當設計無要求時,與管道的最小凈距,符合12.3.1.5(5)的規定。
表示12.3.1.5 (5)與管道的最小凈距

六、托臂安裝:
托臂是直接支承托盤、梯架單獨固定的剛性部件,托臂有螺栓固定可預埋螺栓,也可采用膨脹螺栓,也可卡接,如圖12.3.1.6(1)、(2)、(3)、(4)、(5)。




三、電纜橋架安裝注意事項
一、施工要求
1、直線段鋼制電纜橋架長度超過30m,鋁合金或玻璃鋼制電纜橋架長度超過15m應設有伸縮節,跨越伸縮縫處設置補償裝置,可用帶伸縮節的橋架。
2、橋架與支架間螺栓、橋架連接板螺栓緊固無遺漏,螺母位于橋架外側,當鋁合金橋架與鋼支架固定時,有相互間絕緣防電化措施腐蝕措施,一般可墊石棉墊。
3、敷設在豎井內和穿越不同防火區的橋架,應按設計要求位置,有防火隔離措施,電纜橋架在電氣豎井內敷設可采用角鋼固定,見圖12.3.1.8。
4、電纜橋架在穿過防火墻及防火樓板時,應采取防火隔離措施,防止火災沿線路延燃;防火隔離墻、板,應配合土建施工預留洞口,在洞口處預埋好護邊角鋼,施工時根據電纜敷設的層數和根數用L50×50×5角鋼作固定框,同時將固定柜焊在護邊角鋼上;也可以先作好框在土建施工中砌體或澆灌混凝土時安裝在墻、板中。
二、橋架接地
橋架的接地,當設計允許利用橋架系統構成接地干線回路時,應符合下列要求:
金屬電纜橋架及其支架引入或引出的金屬電纜導管必須接地(PE)或接零(PEN)可靠,且必須符合下列規范:
1、金屬電纜橋架及其支架全長,與接地(PE)或接零(PEN)干線相連接不小于2處,使整個橋架為一個電氣通路。
2、非鍍鋅電纜橋架間連接的兩端跨接銅芯接地線,接地線最小允許截面積不小于4mm2。
3、鍍鋅電纜橋架間連接板的兩端可不跨接接地線,但連接板兩端不少于2個有防松螺帽或防松墊圈的連接固定螺栓。
四、關于橋架的一些計算
橋架的放線容量,我們在布線中用的最多,平時我們是根據所有線纜總面積來確定橋架的大小,計算的方法前面弱電行業網曾介紹過,有不少朋友反映計算太慢,那么這里面我們分享一個橋架自動計算表格,填入線纜的根據,即可確定橋架的型號。

滬公網安備 31011202001934號